Strada Miravalle, 24/4 - 10024 Moncalieri (TO) +39 011 647 21 75 +39 338 92 23 319 This email address is being protected from spambots. You need JavaScript enabled to view it.

Indirizzo

1 20 Icona indirizzo  Str. Miravalle, 24/4

10024 Moncalieri (TO)

2 20 Telefono  011 647 21 75555

3 20 Cellulare  338 92 23 319

4 20 Email verde ecotribe2005@yahoo.it

01 500x395 Pres HARMONY BHCALDAIA A LEGNA A FIAMMA ROVESCIATA BLAZE HARMONY BH

  • Garanzia 7 ANNI contro la corrosione
     
     

    Presentazione caldaia a legna HARMONY BH

  • Potenza nominale 18 - 25 - 33kW
  • Efficienza della combustione ≥ 90%
  • Carico dall'alto del combustibile
  • Combustione ottimale con SONDA LAMBA
  • Vano di carico isolato INOX e parte inferiore in refrattario
  • Camera di combustione a secco in refrattario
  • Pulizia semi automatica degli scambiatori termici
  • Valvola anticondensa integrata
  • Rilevamento del combustibile rimanente
  • Sistema automatico integrato per mantenimento braci
  • Classe di qualità ambientale   
       

Le caldaie a legna della serie HARMONY BH sono generatori termici di alta qualità con rendimenti elevati > 92,0% grazie alla gassificazione con fiamma inversa. Fino alla potenza di 18kW sono alimentate con legna pezzata da 33cm, mentre quelle di potenza superiore ai 25kW sono alimentate con ciocchi da da 50cm. Particolare attenzione è stata riservata alle soluzioni tecniche, basti pensare agli inserti intercambiabili del vano di carico posti a protezione del corpo caldaia, ai rivestimenti refrattari che preservano la struttura metallica dalle altissime temperature sviluppate durante la combustione e alla caratteristica di avere lo sportello del vano di carico del combustibile posta superiormente, come se fosse una fiamma assiale. Sono prodotte nei modelli HARMONY da 12 – 18 – 25 – 33kW e possono essere fornite con o senza sonda lambda a seconda delle esigenze. Soddisfano i parametri sulle prestazioni secondo la norma EN 303-5:2012 - Classe 5 e rientrano nella CLASSE AMBIENTALE 4 STELLE.

COMBUSTIBILI AMMESSI

             
Legna pezzata Ritagli di Segheria Gusci di nociola Tronchetti pressati Trucioli di legna Cippato di legna Segatura di legna
NB: l'uso dei combustibili triti o granulari, in una caldaia a legna a gassificazione con fiamma inversa, sono subordinati alla possibilità di lasciare circolare all'inteno del generatore l'aria comburente. Per questa ragione i combustibili frammentati vanno intercalati a normali strati di legna pezzata. L'uso esclusivo di questi tipi di combustibile può ostruire il passaggio dell'aria primaria e di conseguenza portare al soffocamento della fiamma, con il rischio di spegnimento della caldaia. Per utilizzare principalmente questi tipi di combustibili si consiglia di prendere in considerazione caldaie più specifiche.

 

 2 1000x750 Spaccato Caldaia BH

  3 500 Schema dim. BH               
POS. BH 18  BH 25  BH 33
    Misure in mm
A  568 752 752
B Ø 147 Ø 147 Ø 147
1365 1365 1365
D 1404 1404 1404
E 424 608 608
F 138 138 138
G 295 295 295
H 670 670 670
I 880 880 880
J 640 640 640
K 526 526 526
L 50  50 50
X - Y G 1"½ G 1"½ G 1"½
Z G ½" G ½" G ½"
 

  

01 300 Caldaia HARMONYloghi rend    DATI TECNICI BLAZE HARMONY SERIE BH U. Mis. BH 18 BH 25 BH 33
   Potenza nominale   kW    18    25   33
   Campo di modulazione    kW    10÷ 23   15÷ 32   16÷ 35
   Rendimento certificato   %   90   90   90
   Lunghezza dei ceppi di legna   mm    350   500   500
   Volume vano di carico    L   100   150   150
   Peso caldaia   Kg   400   550   560
   Volume scambiatore      50   60   60
   Pressione d'esercizio max     bar    3,0   3,0   3,0
   Classe di prestazione (Uni 303-5:2012)   -   5   5   5
   EcoDesign (Modello economico di sostenibiltà)     -    SI   SI   SI
   Classe energetica     -   A+    A+   A+
   Classe di qualità ambientale (D.M. 186(2017)     -      

 

       
       
 POS.   DESCRIZIONE CALDAIA

 

 

 

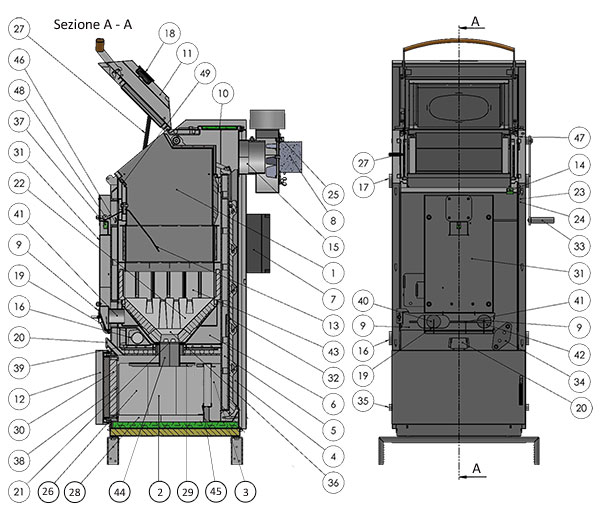
4.0 600 Sezione BH12 18

SEZIONE CALDAIA HARMONY HB 18

  
1   Vano di carico del combustibile
2   Camera di combustione in refrattario
3   Scambiatore termico laterale
4   Scambiatore termico posteriore
5   Corpo caldaia inox
6   Rivestimento protezione vano di carico
7   Scatola schede elettroniche della centralina
8   Ventilatore d'aspirazione
9   Serranda scorrevole regolazione aria comburente
10   Coperchio sup. scambiatore di calore posteriore
11   Sportello vano di carico del combustibile
12   Sportello inf. accesso camera di combustione
13   Leva interna rilevamento quantità combustibile
14   Sensore rilevamento apertura sportello vano di carico
15   Attacco scarico fumi del ventilatore 
16   Attacco ritorno G 1" 1/2 F
17   Attacco mandata G 1" 1/2 F
18   Display digitale luminoso touch screen
19   Serranda scorrevole regolazione aria comburente
20   Spioncino in vetro ceramica per ispezione fiamma
21   Feritoia passaggio fiamma
22   Piastra refrattaria post. fondo vano carico 
23   Termostato d'emergenza
24   Pozzetto sonda temperatura acqua
25   Sonda temperatura fumi di scarico
26   Piastra laterale camera combustione (6pz18-25-33)
27   Asta sostegno sportello vano di carico aperto
28   Base camera di combustione (6pz18 - 9pz25-33)
29   Barra supporto piastre refrattarie camera combustione (2 lat. - 1 post.)  
30   Piastra isolante sportello camera combustione (3pz18 - 4pz25-33)      

4.1 600 Sezione BH25 33

SEZIONE CALDAIA HARMONY BH 25 e 33

31   Pannello distribuzione aria comburente
32   Turbolatori pulizia scambiatori verticali (5pz18 - 7pz25-33)
33   Leva azionamento turbolatori verticali
34   Termostato controllo temperatura acqua caldaia
35   Attacco carico / scarico acqua caldaia 1/2"
36   Blocchetto diffusore fiamma (4pz18 - 8pz25-33)
37   Sensore rilevamento legna e gestione mantenimento braci
39   Distributore interno acqua di ritorno
40   Presa aria primaria
41   Presa aria secondaria
42   Feritoia sup. immissione aria essiccazione legna
43   Piastra superiore in refrattario vano di carico (12pz18 - 14pz25-33)
44   Diffusore fiamma 
45   Area accesso vano raccolta cenere scambiatore porteriore
46   Braccio di spinta
47   Tirante meccanismo di spinta
48   Braccio di bilanciamento
49   Feritoia superiore immissione aria essiccazione legna
51   Parte inferiore diffusore di fiamma (2pz25-33)
52   Parte anteriore diffusore di fiamma (2pz25-33)
53   Parte laterale diffusore di fiamma (2pz25-33)
54   Cuneo di bloccaggio (2pz25-33)
55   Blocchetto centrale (1pz25-33)  
56   Blocchetto accessorio (2pz25-33)  
57   Gruppo integrato anticondensa   NB: (5pz18 - 7pz25-33) I numeri in basso indicano la quantità dei componenti e quelli in alto i modelli a cui si riferiscono

 

 

9 240 Dettaglio valvola anticondensa  POS.  COMPONENTI VALVOLA ANTICONDENSA INTEGRATA
15   Attacco ritorno G 2" 1/2 F
33  Termostato anticondensa per miscelazione temperatura acqua di ritorno
38   Distributore interno acqua di ritorno
47  Molla di compressione del termostato
48   Riduzione 2”½ M  → 1”½ F
   

12 350 Componenti anticondensa

DETTAGLIO COMPONENTI VALVOLA ANTICONDENSA

   
   
   
   
 DETTAGLIO VALVOLA ANTICONDENSA    
 
              Per maggiori info sulla valvola anticondensa della BLAZE HARMONY clicca qui

 

 

 8 250 Vista frontale regolazione aria

DETTAGLIO FRONTALE PRESE ARIA COMBURENTE

   DESCRIZIONE PRESE ARIA COMBURENTE    POS.
  Serranda scorrevole regolazione aria comburente e d'essiccazione    8
  Pannello distribuzione aria comburente     30
  Presa aria primaria    50
   Presa aria secondaria    51
   Presa aria essiccazione legna    52
   Supporto attuatore elettrico    54
   Attuatore elettrico regolazione serranda arie     55
   Leva trasmissione moto alla serranda     56
 

 

5 300 air supply bordo 1   6 300 air supply bordo 2   7 300 air supply bordo 3
         
FASE 1 - ARIA PRIMARIA APERTA AL 100%   FASE 2 - ARIA SECONDARIA APERTA AL 100%   FASE 3 - ARIAPRIMARIA E SECONDARIA APERTE AL 50%
         
L’aria di pre-essiccazione e l‘aria primaria sono aperte al 100%, l’aria secondaria è completamente chiusa. Il registro dell’apporto dell’aria si trova in tale posizione in caso di  combustione di legna umida o di grandi ceppi.  

L’aria secondaria è aperta al 100 %, l’aria di pre-essiccazione e l’aria primaria sono completamente chiuse. Il registro dell’apporto dell’aria si trova in tale posizione in caso di combustione di legna secca o bricchette, in cui è necessaria una maggiore quantità d’aria secondaria per una combustione efficace.

  L’aria primaria e secondaria è aperta al 50 %, l’aria di pre-essiccazione è completamente chiusa. Il registro dell’apporto dell’aria si trova in tale posizione quando l’attuatore regola la posizione del registro più idonea a mantenere il valore di ossigeno preimpostato.

 

     SCARICA DEPLIANT CALDAIE A BIOMASSA BLAZE                01 50 Freccia verde    02 50 Logo Rosso PDF
   
     SCARICA DEPLIANT CALDAIA A LEGNA HARMONY          01 50 Freccia verde   02 50 Logo Rosso PDF
We use cookies
Utilizziamo i cookie sul nostro sito web. Alcuni di essi sono essenziali per il funzionamento del sito, mentre altri ci aiutano a migliorare questo sito e l'esperienza dell'utente (cookie di tracciamento). Puoi decidere tu stesso se consentire o meno i cookie. Tieni presente che se li rifiuti, potresti non essere in grado di utilizzare tutte le funzionalità del sito.